Homepage
MAVA ARCHI

GARDEN HOUSE DIVISOV

IDEA

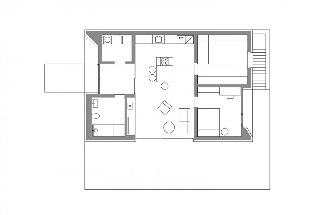
Navržená novostavba je půdorysně koncentrovaný dům umístěný do zahrady vedle současné stavby hlavní, ve které žijí dvě rodiny. Přáním klienta bylo získat soukromý prostor, ve kterém budou trávit čas výhradně jejich hosté. Zároveň má objekt sloužit jako zahradní domek. To znamená, že obsahem nabízí možnost trávení volného času formou vaření, koupání, společného grilování, lenošení, atp. V předním i zadním štítu jsou zapuštěné vstupy, které vytvářejí pocit útulnosti a propojenosti zahrady s interiérem (nedocíleno pouze velkými okny). Materiálově pak navazuje na tradici svého okolí a kombinuje výhradně přírodní prvky. V současné době (III./2021) bylo získáno stavební povolení a brzy se začne s demolicí původní dřevěné boudy, kterou novostavba nahrazuje.

ADDITIONAL INFO

Status Building permit

Place Divišov (Czech Republic)

Private client

Visualisation Dousek-Záborský

Year 2021