Homepage
MAVA ARCHI

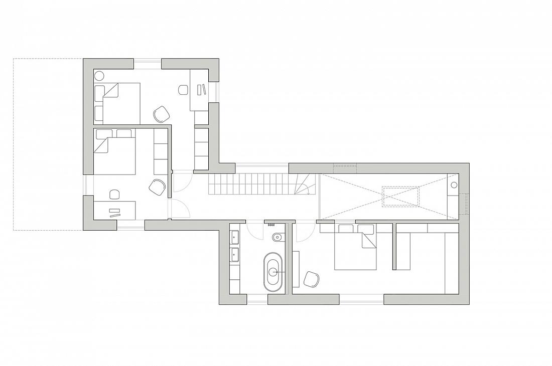
NEMYSLOVICE (RD)

IDEA

Rodinný dům pro mladou rodinu, který si hraje a balancuje mezi naší snahou a představou o zábavné artikulací vnitřního prostředí a s jasně danými požadavky jeho budoucích uživatelů. Jednoduchá a čitelná forma, která na malém pozemku vytváří vrstvy zážitků - vznik odlišných typů zákoutí s různým charakterem. Posunutím hmot dům členíme do menšího měřítka a lépe tím vyplňuje své místo. V současné době se připravuje dokumentace pro společné povolení a výběr zhotovitele.

ADDITIONAL INFO

Status: Design study, Building permit documentation (current status)

Place: Nemyslovice (Czech Republic)

Co-author: Ing. arch. Tereza Stambolijská

Client: Private

Visualisation: Dousek-Záborský

Year: 2021/2022